Bytom, Adolfa Piątka

Mieszkanie na sprzedaż

Opis nieruchomości

ENGLISH TEXT SCROLL DOWN ↓ We speak English, Deutsch, Italiano, Українська, Polski – Call or text us anytime +48 798 440 300

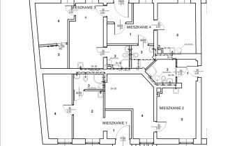
4 MIESZKANIA 2023 r. GOTOWIEC INWESTYCYJNY 127 m2

Mieszkanie 127 m2 dopiero co oddane w użytkowanie po Generalnym Remoncie, podzieleniu na 4 mieszkania 2-pokojowe i ich pełnym wykończeniu. Wszystkie instalacje i całe wyposażenie nowe, nowoczesne wnętrza. Bardzo niskie opłaty i bardzo dobry dojazd, parkingi dookoła budynku i wzdłuż ulicy A.Piątka.

Inwestycja składa się z 4 niezależnych mieszkań 2-pokojowych. Mieszkania tworzą wspólnotę ze wspólnym, prywatnie regulowanym piecem na gaz. Każde z mieszkań posiada osobne liczniki, rozliczenie i jest użytkowane niezależnie.

Korzyści dla inwestora:

  • Nowoczesne wnętrza 4 mieszkań
  • Nowe instalacje i przyłącza
  • Zainstalowane niezależne grzejniki, wentylacje, obwody elektryczne
  • W każdym mieszkaniu salon z aneksem kuchennym i osobna sypialnia
  • Wyposażone, piękne łazienki
  • Okna wymienione, nowe PCV
  • Pełne wykończenie: grzejniki, płytki, lampy, sanitariaty, kuchnie
  • Wyposażone w aneksy kuchenne
  • 4 niezależne wejścia do każdego z mieszkań
  • Idealne do zamieszkania i/lub na wynajem

Każde Mieszkanie składa się z:

  • Pokój z aneksem kuchennym
  • Sypialnia
  • Przedpokój
  • Łazienka z WC i prysznicem

Lokalizacja inwestycji:

  • Bytom, Szombierki – ul. Adolfa Piątka
  • Wysoki parter
  • Spokojna, mieszkalna okolica
  • Parkingi publiczne wzdłuż ulicy i od podwórka
  • Centralna lokalizacja wśród największych miast Konurbacji Górnośląskiej: Katowic, Gliwic, Bytomia, Rudy Śląskiej, Tarnowskich Gór, Chorzowa. Zabrza

Opłaty miesięczne:

  • Wspólnota (bardzo niska opłata)
  • Gaz (ogrzewanie ze wspólnego pieca)
  • Prąd (licznik)
  • Woda (zaliczka)


Mieszkania zostały dokładnie sprawdzone. Zapraszamy do zadawania pytań i oglądnięcia Inwestycji na miejscu
:

 

Zadzwoń lub napisz do nas już dziś, aby uzyskać więcej informacji lub umówić się na wizytę w każdy dzień tygodnia:

ŁOWCY Nieruchomości | Grupa HOLDIMEX

Michał Mandowski

Tel/WhatsApp/SMS  7 dni w tygodniu  798 440 300

LowcyNieruchomosci.pl
_______________________________________________________________________________________________________________________________________
ENGLISH

4 APARTMENTS 2023. READY INVESTMENT PRODUCT 127 m2

A 127 m2 apartment has just been put into use after general renovation, divided into 4 2-room apartments and fully finished. All installations and equipment are new, modern interiors. Very low fees and very good access, parking lots around the building and along A.Piątka Street.

The investment consists of 4 independent 2-room apartments. The apartments form a community with a shared, privately regulated gas furnace. Each apartment has separate meters, settlement and is used independently.

Benefits for the investor:

  • Modern interiors of 4 apartments
  • New installations and connections
  • Independent radiators, ventilation and electrical circuits installed
  • Each apartment has a living room with a kitchenette and a separate bedroom
  • Equipped, beautiful bathrooms
  • Windows replaced, new PVC
  • Full finishing: radiators, tiles, lamps, sanitary facilities, kitchens
  • Equipped with kitchenettes
  • 4 independent entrances to each apartment
  • Perfect for living and/or renting
Each apartment consists of:
  • Room with kitchenette
  • Bedroom
  • Hall
  • Bathroom with toilet and shower
Investment location:
  • Bytom, Szombierki – ul. Adolf Piątek
  • High ground floor
  • Quiet, residential area
  • Public parking along the street and in the yard
  • Central location among the largest cities of the Upper Silesian Conurbation: Katowice, Gliwice, Bytom, Ruda Śląska, Tarnowskie Góry, Chorzów. Zabrze
Monthly fees:
  • Community (very low fee)
  • Gas (common stove heating)
  • Current (meter)
  • Water (advance payment)

The apartments have been thoroughly checked. We invite you to ask questions and view the investment on site:

HUNTERS Real Estate | HOLDIMEX Group

Michał Mandowski

Tel/WhatsApp/SMS 7 days a week 798 440 300

LowcyNieruchomosci.pl

Nota prawna

Opis oferty zawarty na stronie internetowej sporządzany jest na podstawie oględzin nieruchomości oraz informacji uzyskanych od właściciela, może podlegać aktualizacji i nie stanowi oferty określonej w art. 66 i następnych K.C.

Szczegóły oferty

Symbol oferty IRE-MS-51
Powierzchnia 127,00 m²
Liczba pokoi 8
Piętro wysoki parter
Rodzaj budynku kamienica
Standard
Liczba pięter w budynku 4
Stan lokalu Do wprowadzenia
Okna nowe PCV
Instalacje częściowo wymienione
Balkon brak
Gaz jest
Woda jest
Ogrzewanie własne dla budynku
Usytuowanie dwustronne

Lokalizacja

Kalkulator kredytowy

PLN
%
Wysokość raty

Kalkulator kosztów

PLN
PLN
PLN
PLN
PLN
PLN
%
PLN
Podatek od czynności cywilno-prawnych
Taksa notarialna (opłata notarialna)
VAT od taksy notarialnej (opłaty notarialnej)
Wniosek do WKW
VAT od wniosku do WKW
Prowizja agencji nieruchomości
VAT od prowizji agencji nieruchomości
Wypisy aktu notarialnego - około
RAZEM (cena + opłaty)

Napisz do nas

Proszę wypełnić to pole
Proszę wypełnić to pole
Proszę wypełnić to pole
Proszę wypełnić to pole
Trwa wysyłanie...

Ta strona wykorzystuje pliki cookies w celach statystycznych oraz w celu dostosowania naszych serwisów do indywidualnych potrzeb klientów. Zmiany ustawień dotyczących plików cookie można dokonać w dowolnej chwili modyfikując ustawienia przeglądarki. Korzystanie z tej strony bez zmian ustawień dotyczących cookies oznacza, że będą one zapisane w pamięci urządzenia.

rozumiem